If you are searching about Oil Tanker 105 Feet DWG Block for AutoCAD • Designs CAD you've visit to the right place. We have 9 Pictures about Oil Tanker 105 Feet DWG Block for AutoCAD • Designs CAD like Porch and Patio Idea You'll Want to Steal This Fall, Diy outdoor grill area cinder blocks 38 best Ideas | Outdoor patio bar and also Tourist Metrocable - Park Arvi - Medellin DWG Block for AutoCAD. Read more:
Oil Tanker 105 Feet DWG Block For AutoCAD • Designs CAD
designscad.com dwg block oil tanker autocad feet cad drawing
Diy Outdoor Grill Area Cinder Blocks 38 Best Ideas | Outdoor Patio Bar
br.pinterest.com cinder
Conveyor Belts DWG Block For AutoCAD • Designs CAD
designscad.com conveyor dwg block autocad belts cad drawing
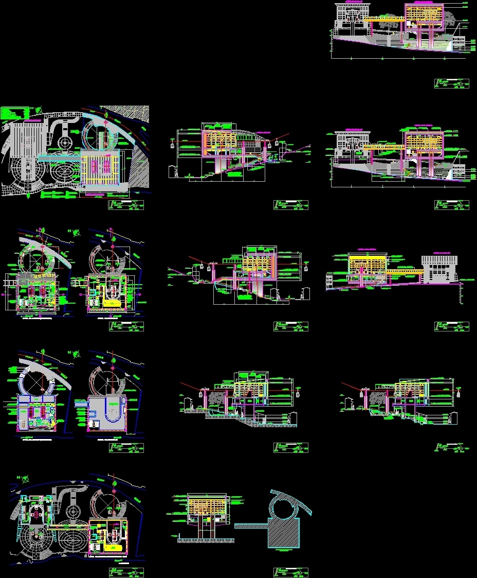
Tourist Metrocable - Park Arvi - Medellin DWG Block For AutoCAD
designscad.com dwg autocad metrocable medellin arvi tourist block park cad
Child Support Center DWG Block For AutoCAD • Designs CAD
designscad.com autocad center dwg block child support
Porch And Patio Idea You'll Want To Steal This Fall
www.trendir.com hamacas balancines terrazas colgantes mimbre wohomen
Public Park Design DWG Block For AutoCAD • Designs CAD
designscad.com park dwg autocad bibliocad block cad advertisement
Kindergarten, Infantile Play School. Pre School 2D DWG Plan For AutoCAD
designscad.com plan kindergarten dwg autocad 2d play cad hospital infantile pre centres health drawing
Elevated Water Tank DWG Block For AutoCAD • Designs CAD
designscad.com tank water block dwg elevated autocad drawing cad
Public park design dwg block for autocad • designs cad. Conveyor dwg block autocad belts cad drawing. Autocad center dwg block child support

0 Comments